Moderné kancelárske priestory
- Cena na vyžiadanie v RK
Moderné kancelárske priestory
- Cena na vyžiadanie v RK
Prehľad
- Kancelárske priestory
- 4761
Popis
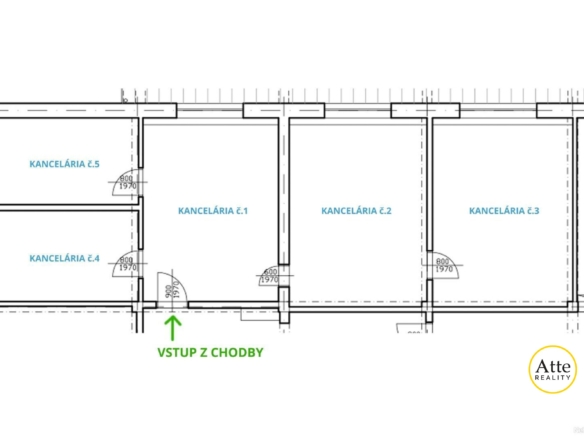
Radi by sme vám predstavili tieto úžasné kancelárske priestory, ktoré vás určite nadchnú. Nachádzajú sa v priemyselnej časti mesta Trnava a ponúkajú výmeru 25 m² (kancelárie č. 1, 2, 3) a 12,5m2 (kancelárie č. 4, 5 – viď pôdorys). Aktuálne majú vlastný hlavný spoločný vstup, ale sme pripravení vytvoriť nový vstup pre dve 25 m² kancelárie (č. 2 a 3 – viď pôdorys) pre vašu maximálnu pohodlnoť.
Tieto priestory vynikajú:
- Nedávno rekonštruovanou krásou, čo znamená moderné a elegantné pracovné prostredie
- Štýlovým zariadením, čo vytvára príjemnú pracovnú atmosféru
- Klimatizáciou pre optimálne teplotné podmienky
- Rýchlym pripojením na optický internet, čo je nevyhnutné pre efektívnu prácu
Detaily
Updated on 10 februára, 2025 v 9:15 pm-
ID nehnuteľnosti 4761
-
Cena Cena na vyžiadanie v RK
-
Typ nehnuteľnosti Kancelárske priestory
-
Transakcia Prenájom
Vlastnosti
Adresa
Otvoriť v Google Maps-
Obec: Trnava
Hypotekárna kalkulačka
Mesačne
-
Akontácia
-
Výška úveru
-
Mesačné splátky hypotéky
-
Mesačné poplatky do fondu opráv
Kontaktné informácie
Pozrieť ponukyPodobné inzeráty
Na prenájom: Útulná a efektívna kancelária 23 m2 s parkovaním – Trnava, areál TAZ
- 7€/m² bez DPH / mesiac
Predaj komerčných priestorov v Trnave: Administratíva, Výroba a Sklad (Jednotlivo / Celok)
- Cena na vyžiadanie v RK









